Location de cabinet médical à Voisins-le-Bretonneux
Cabinet à louer à Voisins-le-Bretonneux, 78960
Cabinet à louer à Voisins-le-Bretonneux, 78960
Caractéristiques du centre
- Internet
- Salle de repos
- Parking clientèle
- Climatisation
- Fenêtre
- Point d’eau
Disponibilités
| Jour de la semaine | Matin | Après-midi |
|---|---|---|
| Lundi | ||
| Mardi | ||
| Mercredi | ||
| Jeudi | ||
| Vendredi | ||
| Samedi | ||
| Dimanche |
Trouvez le type de location idéal
Répondez à quelques questions pour une recommandation personnalisée :
Est-ce une première installation ?
Description
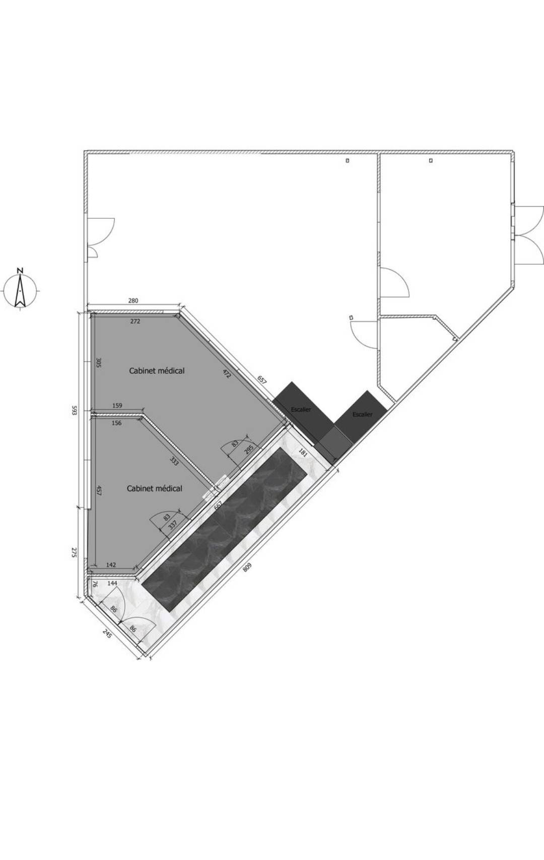
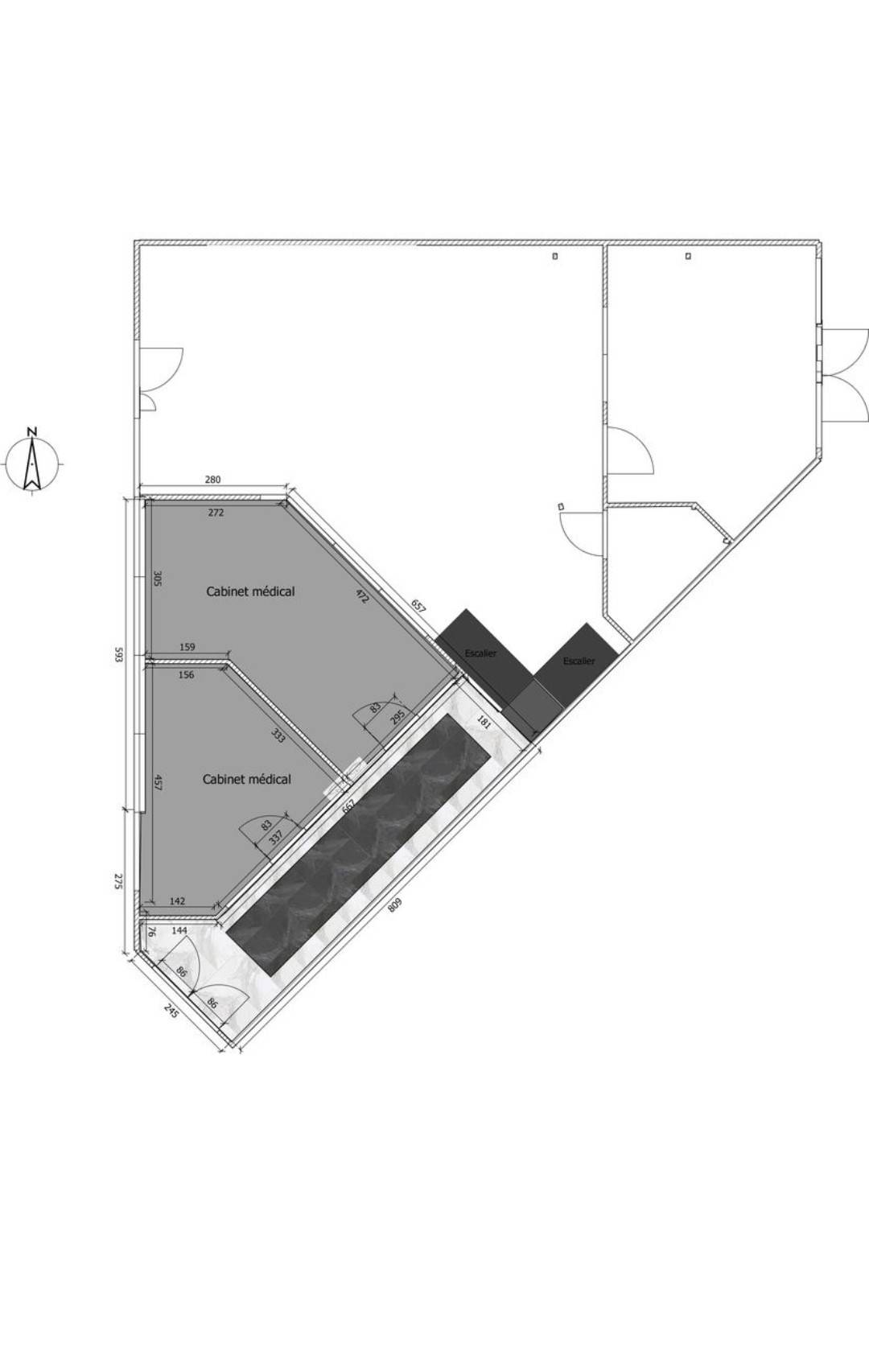
Bonjour, Je propose à la location une salle de consultation se trouvant dans un nouveau centre paramédical à Voisins-le-Bretonneux pour un kinésithérapeute afin de constituer une équipe pluridisciplinaire orientée sport. Trois praticiens ( 1 ostéopathe, 1 diététicien et 1 second kinésithérapeute) et un coach sportif complètent l'équipe. Centre paramédical constitué de 4 salles de consultations, d'un plateau sportif et d'un espace récupération sportive. Surface salle de consultation : 18,5m² Loyer mensuel : 1000€ TTC charges comprises (eau, électricité et internet) Bail 3-6-9 Accès au plateau sportif de 60m2 Espace de repos et salle d’attente en partage avec les autres professionnels. Pour plus de précisions je vous invite à prendre contact.
Propriétaire
Prix
Prix
- Loyer mensuelxxxx€
- Loyer mensuelxxxx€
- Loyer mensuelxxxx€
Frais de service MonCab
xx€Frais de service MonCab
xx€Frais de service MonCab
xx€- Totalxxx€
