Annonce cabinet médical à Châtillon-sur-Cluses
Cabinet médical en location
Cabinet médical en location
Pôle Santé - Châtillon-sur-Cluses, 74300
Cabinet médical et paramédical
Caractéristiques du centre
- Salle de repos
- Climatisation
- Fenêtre
- Point d’eau
- Accès PMR
- Terrasse
- Interphone
Disponibilités
| Jour de la semaine | Matin | Après-midi |
|---|---|---|
| Lundi | ||
| Mardi | ||
| Mercredi | ||
| Jeudi | ||
| Vendredi | ||
| Samedi | ||
| Dimanche |
Trouvez le type de location idéal
Répondez à quelques questions pour une recommandation personnalisée :
Est-ce une première installation ?
Description
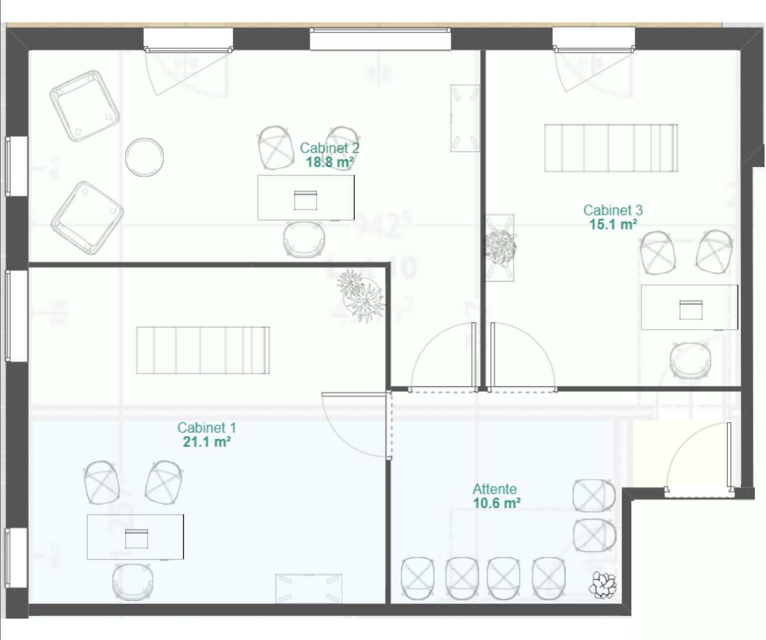
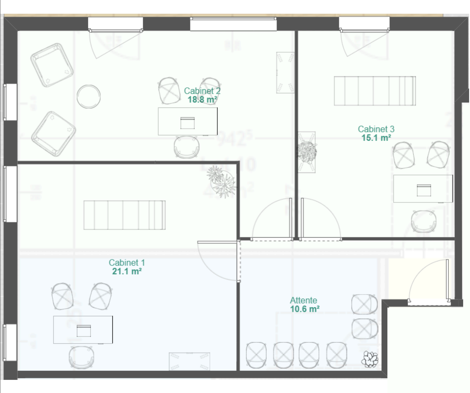
Local Professionnel Neuf 67m² - Pôle Santé Pluridisciplinaire Opportunité rare à saisir ! Un local professionnel de 67m² est disponible à la location au sein du futur Pôle Santé de Châtillon-sur-Cluses. Livraison avec aménagement sur mesure prévue fin 2026. L'aménagement intérieur sera entièrement pris en charge par le propriétaire selon vos besoins (possibilité de créer 3 cabinets et 1 salle d'attente), vous n'aurez plus qu'à l'équiper et le meubler ! Un environnement professionnel idéal. Rejoignez un Pôle Santé dynamique et complet qui accueille déjà : médecin généraliste, kinésithérapeute, ostéopathe, sage-femme, cabinet infirmier, sophrologue, ainsi qu'une micro-crèche. Cette synergie favorise les échanges entre professionnels et assure une patientèle régulière et diversifiée, créant un environnement de travail stimulant et collaboratif. Emplacement Stratégique et Facile d'Accès : Idéalement situé à Châtillon-sur-Cluses (74300), le local bénéficie d'une excellente visibilité sur la D902 (passage d'environ 12 500 véhicules/jour). Un grand parking public et gratuit de plus de 100 places est disponible à proximité immédiate, assurant un accès facile pour votre patientèle. Conditions de Location : Surface : 67 m² + 1 Terrasse de 30 m² Disponibilité : Fin 2026 - Début 2027 (local neuf) Aménagement : Entièrement pris en charge par le propriétaire (création de 3 cabinets et salle d'attente possible) + une salle commune à tous les professionnels du pôle santé est déjà prévue dans les espaces communs Loyer : 348€ TTC/m²/an (hors charges) Charges : En sus, facturées au réel (eau, électricité, internet, taxe ordures ménagères, maintenance ascenseur, maintenance sécurité intrusion/incendie, climatisation/VMC...) Adresse : Route de Bossonnets à Châtillon-sur-Cluses (74300) Ce local est idéal pour tout professionnel de santé, médical ou paramédical, souhaitant s'installer dans un environnement moderne et porteur. Contactez-nous dès maintenant pour plus d'informations et pour discuter de votre projet d'installation !
Propriétaire
Prix
Prix
- Loyer mensuelxxxx€
- Loyer mensuelxxxx€
- Loyer mensuelxxxx€
Frais de service MonCab
xx€Frais de service MonCab
xx€Frais de service MonCab
xx€- Totalxxx€
